Lots en ZA à vendre à 30 min de Valence (26)
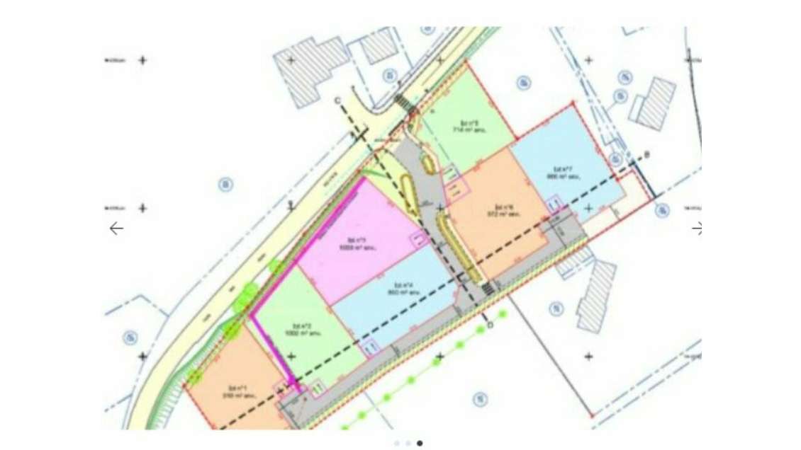
Voirie 5,5 m, cheminement piéton, bassin pluvial, réseaux eau/assainissement/télécoms/électricité, éclairage public et espaces végétalisés. Cadre paysager de qualité, au pied des Grands Goulets. Commune classée ZFRR, ouvrant droit, sous conditions, à des exonérations fiscales et sociales.
Les informations sur les risques auxquels ce bien est exposé sont disponibles sur le site Géorisques :
Disponibilité: Immédiate
Accès Grenoble/Valence via A43 et réseau TER. Valence TGV ≈35 min ; TER Saint-Hilaire-Saint-Nazaire ≈15 min ; Saint-Marcellin ≈25 min. Environnement naturel du Vercors, attractif pour PME artisanales et services de proximité.
Données Financières
Surfaces et longueurs
Surface de 1 000 m²
Equipements
Bilan énergétique
Le classement énergétique n'a pas été communiqué par l'annonceur.
Emplacement
Synthèse
A vendre Immobilier d'entreprise Terrains industriels et agricoles
Sainte-Eulalie-en-Royans, Drôme (26), Rhône-Alpes
Surface de 1 000 m²
Réactualisé le 17/03/2026
Référence CessionPME : 26_000013
Demander plus d'informations sur ce bien



