A louer entrepôt rénové 198m² à Tours
Loyer mensuel
3 300€
Surface
198 m²
Montant au m²
200€/m²/an
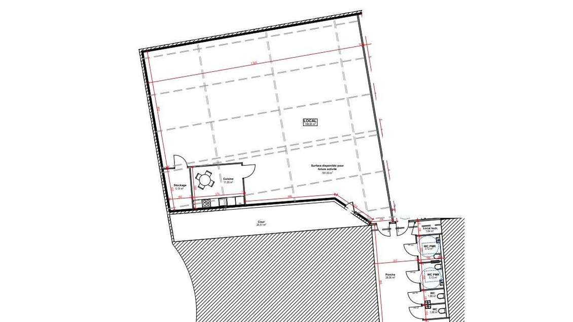
- À LOUER : Entrepôt entièrement rénové de 198 m² environ – A aménager selon vos besoins ! (Côté gauche sur le plan)Vous recherchez un espace fonctionnel et flexible pour votre activité ? Cet entrepôt de 198 m² environ, fraîchement rénové, est la solution idéale pour vos besoins professionnels !Caractéristiques principales :Superficie : 198 m² environ, offrant un vaste espace pour stockage, .Aménagement : Espace brut à aménager selon vos besoins spécifiques (bureaux, zones de stockage, espaces de travail).Accessibilité : Facilement accessible par la route, avec une proximité immédiate des principaux axes de transport.Stationnement : Possibilité de stationnement à proximité Pourquoi choisir cet entrepôt ?Polyvalence : Que vous soyez artisan, commerçant ou une entreprise de logistique, cet espace s’adapte à vos besoins.Personnalisation : Créez un espace qui correspond parfaitement à votre activité et à vos équipes.Localisation stratégique : Centre ville de ToursConditions de location :Loyer mensuel : 3000 Euros HCCharges : 300 Euros mensuelDisponibilité : 1 er Avril
Information d'affichage énergétique sur le bien associé à cette annonce : DPE NS indice 0 et GES NS indice 0. (ID 70459), Agent Commercial mandataire
Les informations sur les risques auxquels ce bien est exposé sont disponibles sur le site Géorisques :
Données Financières
mandat exclusif
Loyer mensuel : 3 300 € (200.04 €/m²/an)
Honoraires : 9 000 €
Surfaces et longueurs
Surface de 198 m²
Bilan énergétique
Diagnostic de performance énergétique (DPE)
N.C.
Catégorie N.C.
Le classement énergétique n'a pas été communiqué par l'annonceur.
Emplacement
Synthèse
A louer Immobilier d'entreprise Locaux d'activités - Entrepôts
Tours, Indre-et-Loire (37), Centre
Loyer mensuel : 3 300 € (200.04 €/m²/an)
Surface de 198 m²
Réactualisé le 18/03/2026
Référence CessionPME : 1668225
Demander plus d'informations sur ce bien
Loyer médian en immobilier professionnel dans l'Indre-et-Loire 37, rubrique Locaux d'activités - Entrepôts
4.43 €/m²/mois
Loyer bas
8.5 €/m²/mois
Loyer médian
8.5 €/m²/mois
Loyer haut



