Local commercial 5 pièces de 156m² à Colmar 68000
Prix de vente
143 000€
Surface
156 m²
Montant au m²
917€/m²
vous présente :
68000 - COLMAR - LOCAL COMMERCIAL - BUREAUX COMMERCIAUX - PLAIN-PIED - ACCES PMR (Personnes à Mobilité Réduite) - 156 M² - ZONE COMMERCIALE DYNAMIQUE - PARKING À PROXIMITÉ
ce local commercial de 156,18 m² (loi Carrez), situé à Colmar, au cœur d'une zone commerciale dynamique regroupant divers commerces de proximité (pharmacie, opticien, alimentation, services...) et à deux pas de grandes enseignes très fréquentées.
Ce local bénéficie d'une excellente visibilité grâce à sa situation privilégiée, à proximité immédiate des transports en commun et de l'hôpital Pasteur, ainsi qu'à la présence d'un grand parking facilitant l'accès de la clientèle.
Vous apprécierez tout particulièrement :
- La surface totale de 156 m² répartie sur deux niveaux
- Accès de plain-pied adapté aux personnes à mobilité réduite (PMR)
- Les deux entrées indépendantes : l'une dédiée à la clientèle, l'autre pour le personnel ou les livraisons
- La localisation stratégique dans un secteur à fort passage, entouré de commerces complémentaires
- Le potentiel d'activités variées : vente, alimentation spécialisée, épicerie fine, santé et bien-être, cosmétique, cabinet de consultation, showroom, etc.
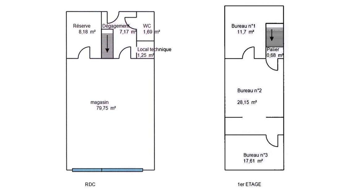
Le local s'organise comme suit :
Rez-de-chaussée :
- Magasin principal de près de 80m2
- Espace de rangement de 8m2
- Entrée avec accès à l'escalier
- Local technique
- WC séparés
Étage :
- Trois pièces supplémentaires (bureau ou rangement) de 11 à 28m2
Un local commercial idéal pour développer votre activité dans un emplacement stratégique et à fort potentiel de rendement, au cœur d'un quartier dynamique de Colmar.
Nombre de lots : 23
Charges prévisionnelles annuelles : 580 €
Les informations sur les risques auxquels ce bien est exposé sont disponibles sur le site Géorisques : https://www.georisques.gouv.fr
Vous souhaitez prendre une rendez-vous via l'agenda en ligne ?
Rendez-vous sur le site welmo.fr ou indiquer "Welmo local commercial Colmar" dans un moteur de recherche.
Les honoraires d'agence sont à la charge de l'acquéreur, soit 5,92% TTC du prix hors honoraires.
Les informations sur les risques auxquels ce bien est exposé sont disponibles sur le site Géorisques : georisques. gouv. fr.
Fanny RAVENEL Entrepreneur Individuel (RSAC N°932 798 929 Greffe de COLMAR) (réf. 592388 )
68000 - COLMAR - LOCAL COMMERCIAL - BUREAUX COMMERCIAUX - PLAIN-PIED - ACCES PMR (Personnes à Mobilité Réduite) - 156 M² - ZONE COMMERCIALE DYNAMIQUE - PARKING À PROXIMITÉ
ce local commercial de 156,18 m² (loi Carrez), situé à Colmar, au cœur d'une zone commerciale dynamique regroupant divers commerces de proximité (pharmacie, opticien, alimentation, services...) et à deux pas de grandes enseignes très fréquentées.
Ce local bénéficie d'une excellente visibilité grâce à sa situation privilégiée, à proximité immédiate des transports en commun et de l'hôpital Pasteur, ainsi qu'à la présence d'un grand parking facilitant l'accès de la clientèle.
Vous apprécierez tout particulièrement :
- La surface totale de 156 m² répartie sur deux niveaux
- Accès de plain-pied adapté aux personnes à mobilité réduite (PMR)
- Les deux entrées indépendantes : l'une dédiée à la clientèle, l'autre pour le personnel ou les livraisons
- La localisation stratégique dans un secteur à fort passage, entouré de commerces complémentaires
- Le potentiel d'activités variées : vente, alimentation spécialisée, épicerie fine, santé et bien-être, cosmétique, cabinet de consultation, showroom, etc.
Le local s'organise comme suit :
Rez-de-chaussée :
- Magasin principal de près de 80m2
- Espace de rangement de 8m2
- Entrée avec accès à l'escalier
- Local technique
- WC séparés
Étage :
- Trois pièces supplémentaires (bureau ou rangement) de 11 à 28m2
Un local commercial idéal pour développer votre activité dans un emplacement stratégique et à fort potentiel de rendement, au cœur d'un quartier dynamique de Colmar.
Nombre de lots : 23
Charges prévisionnelles annuelles : 580 €
Les informations sur les risques auxquels ce bien est exposé sont disponibles sur le site Géorisques : https://www.georisques.gouv.fr
Vous souhaitez prendre une rendez-vous via l'agenda en ligne ?
Rendez-vous sur le site welmo.fr ou indiquer "Welmo local commercial Colmar" dans un moteur de recherche.
Les honoraires d'agence sont à la charge de l'acquéreur, soit 5,92% TTC du prix hors honoraires.
Les informations sur les risques auxquels ce bien est exposé sont disponibles sur le site Géorisques : georisques. gouv. fr.
Fanny RAVENEL Entrepreneur Individuel (RSAC N°932 798 929 Greffe de COLMAR) (réf. 592388 )
Données Financières
Prix de vente : 143000 € (916.67 €/m²)
Honoraires : information non communiquée par l'agence
Surfaces et longueurs
Surface de 156 m²
Bilan énergétique
Diagnostic de performance énergétique (DPE)
N.C.
Catégorie N.C.
Le classement énergétique n'a pas été communiqué par l'annonceur.
Emplacement
Synthèse
A vendre Immobilier d'entreprise Locaux commerciaux - Boutiques
Colmar, Haut-Rhin (68), Alsace
Prix de vente : 143000 € (916.67 €/m²)
Surface de 156 m²
Réactualisé le 20/03/2026
Référence CessionPME : 830030528574
Demander plus d'informations sur ce bien
Prix médian en immobilier professionnel dans le Haut-Rhin 68, rubrique Locaux commerciaux - Boutiques
1173 €/m²
Prix bas
1646 €/m²
Prix médian
2404 €/m²
Prix haut



