Murs commerciaux à Homécourt
Prix de vente
129 000€
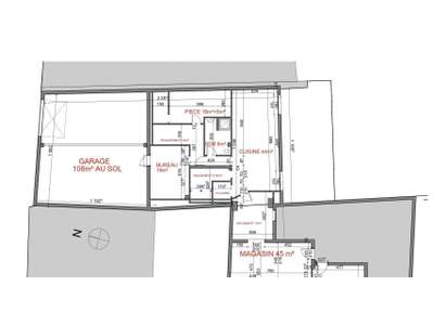
- Opportunité rare : ensemble immobilier à usage commercial et professionnel POSSIBILITE CHANGEMENT DESTINATION (sous permis ou demande de travaux), idéalement situé en plein centre d’Homécourt, à proximité immédiate de la mairie et de La Poste, avec accès clientèle facilité. Surface totale au sol : 300 m² environ Surface habitable : 199 m² environ Le bien se compose de (voir plan) : Espace magasin de 45 m² environ avec vitrines offrant une excellente visibilité et accès direct pour la clientèle. Cuisine de 44 m² environ Salle de bain de 9 m² environ Bureau de 20 m² environ Pièce supplémentaire de 18 m² environ Grand garage de 108 m² environ au sol Dégagements, rangements, placards et espaces de stockage optimisés pour une activité professionnelle. Ce bien offre un fort potentiel commercial et résidentiel, avec de multiples configurations possibles (commerce, bureaux, artisan, profession libérale, stockage, mixte…). N’hésitez pas à me contacter pour toute information ! Information d'affichage énergétique sur le bien associé à cette annonce : DPE NS indice et GES NS indice. (ID 37547), Agent Commercial mandataire .
Les informations sur les risques auxquels ce bien est exposé sont disponibles sur le site Géorisques :
Données Financières
mandat exclusif
Prix de vente : 129000 €
Honoraires : information non communiquée par l'agence
Surfaces et longueurs
Bilan énergétique
Diagnostic de performance énergétique (DPE)
N.C.
Catégorie N.C.
Le classement énergétique n'a pas été communiqué par l'annonceur.
Emplacement
Synthèse
A vendre Immobilier d'entreprise Locaux commerciaux - Boutiques
Homécourt, Meurthe-et-Moselle (54), Lorraine
Prix de vente : 129000 €
Réactualisé le 31/03/2026
Référence CessionPME : 1913898
Demander plus d'informations sur ce bien
Prix médian en immobilier professionnel en Meurthe-et-Moselle 54, rubrique Locaux commerciaux - Boutiques
746 €/m²
Prix bas
1666 €/m²
Prix médian
2409 €/m²
Prix haut

