A louer bureaux de 185m² Montpellier Euro-Médecine
Loyer mensuel
2 698€
Surface
185 m²
Montant au m²
175€/m²/an
À louer - Bureau moderne 185m² dans immeuble de 2025 (possibilité de surfaces supplémentaires ou plus petites).
Vous recherchez des bureaux à louer à Montpellier dans un immeuble récent, aux normes et performant ?
Ce bureau de 185 m², à finir d'aménager suivant vos besoins, est situé à proximité du pôle Euromédecine, en bordure Nord de Montpellier à proximité de nombreuses commodités.
Il peut accueillir de nombreuses activités de bureaux d'entreprises, activités médicales ou libérales, centres de formation, administrations.....etc
Sur place et à proximité immédiate, se trouvent des commerces, grande surface, restaurants et transports en commun.
Caractéristiques principales:
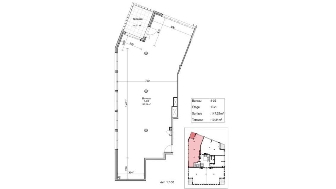
- Surface : 703 m² divisible à partir de 90 m² (Loyer 175€HT/HC/an/m2)
- Aménagements modernes et matériaux haut de gamme offrant un cadre de travail qualitatif : bureaux, open spaces, salles de réunion, sanitaires, espace accueil.
- Places de parking privatives possibles.
- Climatisation, fibre, éclairage LED, contrôle d'accès....
- Accès PMR
Accessibilité :
- Bus
- Tramway Ligne 1 - 10mn
- Centre commercial - 5 min
Un cadre de travail idéal pour les entreprises cherchant des bureaux modernes dans un quartier professionnel qualitatif.
Conditions du bail :
-Loyer 175€HT/HC/m2/an
-Charges provisionnelles : 15€HT/m²/an
-Charges foncières provisionnelles : 15€HT/m2/an
-Dépôt de garantie : 3 mois de loyers HT/HC
-Possibilités de places de parking privatives : Loyer en sus, nous consulter
-Autres charges et conditions : nous consulter pour détail suivant surfaces, divisibilité, places de parking...
Les honoraires d'agence sont à la charge du locataire, soit 5827,50€.
Les informations sur les risques auxquels ce bien est exposé sont disponibles sur le site Géorisques : georisques. gouv. fr.
(RSAC N°901 133 157 - Greffe de MONTPELLIER) Entrepreneur Individuel - Réf.933606
Vous recherchez des bureaux à louer à Montpellier dans un immeuble récent, aux normes et performant ?
Ce bureau de 185 m², à finir d'aménager suivant vos besoins, est situé à proximité du pôle Euromédecine, en bordure Nord de Montpellier à proximité de nombreuses commodités.
Il peut accueillir de nombreuses activités de bureaux d'entreprises, activités médicales ou libérales, centres de formation, administrations.....etc
Sur place et à proximité immédiate, se trouvent des commerces, grande surface, restaurants et transports en commun.
Caractéristiques principales:
- Surface : 703 m² divisible à partir de 90 m² (Loyer 175€HT/HC/an/m2)
- Aménagements modernes et matériaux haut de gamme offrant un cadre de travail qualitatif : bureaux, open spaces, salles de réunion, sanitaires, espace accueil.
- Places de parking privatives possibles.
- Climatisation, fibre, éclairage LED, contrôle d'accès....
- Accès PMR
Accessibilité :
- Bus
- Tramway Ligne 1 - 10mn
- Centre commercial - 5 min
Un cadre de travail idéal pour les entreprises cherchant des bureaux modernes dans un quartier professionnel qualitatif.
Conditions du bail :
-Loyer 175€HT/HC/m2/an
-Charges provisionnelles : 15€HT/m²/an
-Charges foncières provisionnelles : 15€HT/m2/an
-Dépôt de garantie : 3 mois de loyers HT/HC
-Possibilités de places de parking privatives : Loyer en sus, nous consulter
-Autres charges et conditions : nous consulter pour détail suivant surfaces, divisibilité, places de parking...
Les honoraires d'agence sont à la charge du locataire, soit 5827,50€.
Les informations sur les risques auxquels ce bien est exposé sont disponibles sur le site Géorisques : georisques. gouv. fr.
(RSAC N°901 133 157 - Greffe de MONTPELLIER) Entrepreneur Individuel - Réf.933606
Les informations sur les risques auxquels ce bien est exposé sont disponibles sur le site Géorisques :
Données Financières
Loyer mensuel : 2 698 € (174.96 €/m²/an)
Honoraires : 5 828 €
Surfaces et longueurs
Surface de 185 m²
Equipements
terrasse , ascenseur
Informations sur le bail
Bail commercial
Bilan énergétique
Diagnostic de performance énergétique (DPE)
N.C.
Catégorie N.C.
Le classement énergétique n'a pas été communiqué par l'annonceur.
Emplacement
Synthèse
A louer Immobilier d'entreprise Bureaux
Montpellier, Hérault (34), Languedoc-Roussillon
Loyer mensuel : 2 698 € (174.96 €/m²/an)
Surface de 185 m²
Réactualisé le 18/03/2026
Référence CessionPME : 340933977467
Demander plus d'informations sur ce bien
Loyer médian en immobilier professionnel dans l'Hérault 34, rubrique Bureaux
10.06 €/m²/mois
Loyer bas
12.54 €/m²/mois
Loyer médian
15.83 €/m²/mois
Loyer haut



