Local commercial 90m² à louer empl N°1 Avrillé
Loyer mensuel
980€
Surface
90 m²
Montant au m²
131€/m²/an
A LOUER Idéal pour tout activité commerciale tertiaire : assurance, architecte, agence immobilière, intérim, opticien...
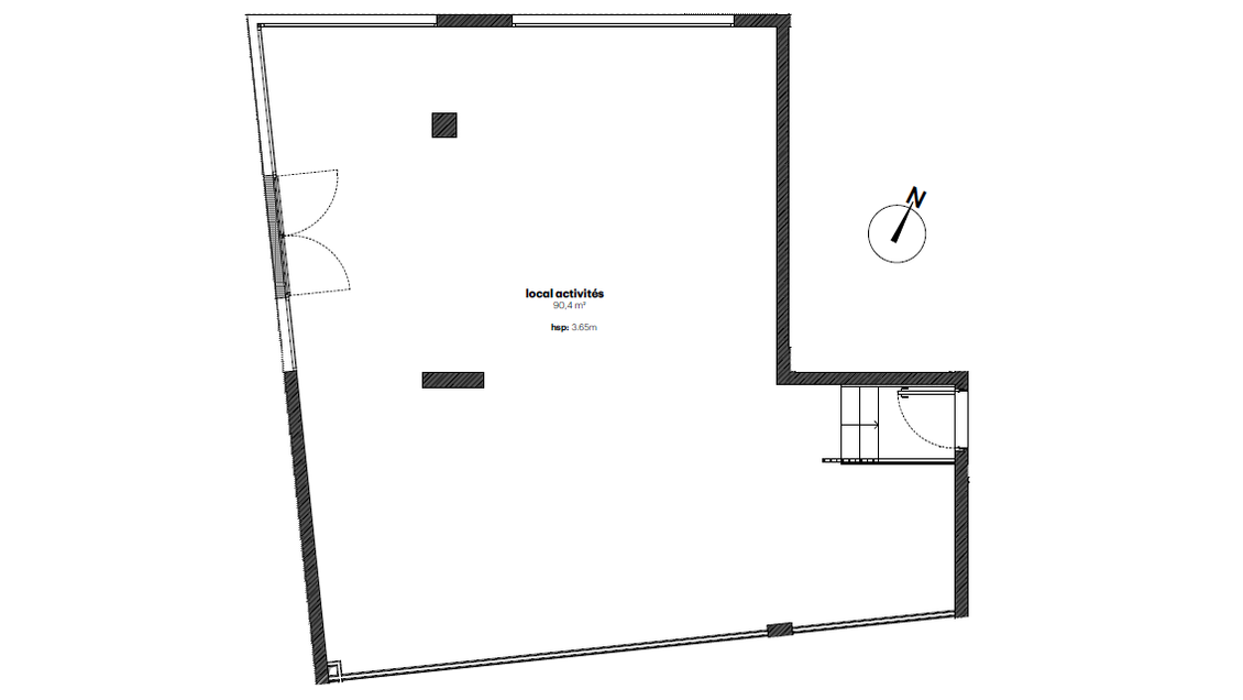
Emplacement n°1 sur l'axe principal Angers-Avrillé, un local commercial ou professionnel d'environ 90 m², brut de béton, avec vitrine posée en verre sécurité et accès PMR. Vitrine de 11 mètres linéaires d'angle sur une devanture de 17 mètres, très belle visibilité sur la rue. Stationnement et parking gratuit. Station de tramway à 100 mètres. Loyer HT mensuel : 980 € + charges et foncier. . Honoraires : 3.528 € TTC (2.940 € HT) à la charge du locataire. CLASSE ENERGIE : programme neuf Les informations sur les risques auxquels ce bien est exposé sont disponibles sur le site
Emplacement n°1 sur l'axe principal Angers-Avrillé, un local commercial ou professionnel d'environ 90 m², brut de béton, avec vitrine posée en verre sécurité et accès PMR. Vitrine de 11 mètres linéaires d'angle sur une devanture de 17 mètres, très belle visibilité sur la rue. Stationnement et parking gratuit. Station de tramway à 100 mètres. Loyer HT mensuel : 980 € + charges et foncier. . Honoraires : 3.528 € TTC (2.940 € HT) à la charge du locataire. CLASSE ENERGIE : programme neuf Les informations sur les risques auxquels ce bien est exposé sont disponibles sur le site
Les informations sur les risques auxquels ce bien est exposé sont disponibles sur le site Géorisques :
Données Financières
Loyer mensuel : 980 € (130.68 €/m²/an)
Honoraires : 3 528 €
Surfaces et longueurs
Surface de 90 m²
Bilan énergétique
Diagnostic de performance énergétique (DPE)
N.C.
Catégorie N.C.
Le classement énergétique n'a pas été communiqué par l'annonceur.
Emplacement
Synthèse
A louer Immobilier d'entreprise Locaux commerciaux - Boutiques
Avrillé, Maine-et-Loire (49), Pays de la Loire
Loyer mensuel : 980 € (130.68 €/m²/an)
Surface de 90 m²
Réactualisé le 18/03/2026
Référence CessionPME : 1386_CR-NR1027
Demander plus d'informations sur ce bien
Loyer médian en immobilier professionnel dans le Maine-et-Loire 49, rubrique Locaux commerciaux - Boutiques
10.8 €/m²/mois
Loyer bas
14.15 €/m²/mois
Loyer médian
23 €/m²/mois
Loyer haut



