• Entreprises Commerces
  • Immobilier Professionnel
  • Opportunités pour investisseurs
  • Franchises et enseignes
  • Cabinets d'affaires Agences immobilières
  • Actualités
  • 8 annonces

    de Location de Local commercial à Avrillé - Local commercial

    A la une
    Location Locaux commerciaux - Boutiques à Avrillé

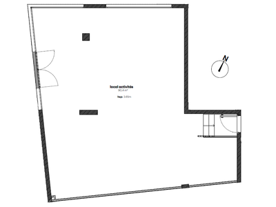
    A louer local 80m² axe passant Avrillé Zone NETTO

    Loyer mensuel
    1 500€
    Surface
    80 m²
    Montant au m²
    225€/m²/an
    À louer, local commercial de 80 m² situé sur un axe très passant.


    - Livraison prévue avril/mai 2026

    - Loyer annuel : 18 000 € HT

    - Cellule livrée brut de béton, réseaux en attente.

    - Idéal commerce ou profession libérale.

    - Trèsbonne visibilité, stationnement à proximité.

    Contactez-nous pour plus d'informations.

    8 annonces trouvées

    Actualités des experts

    CessionPME devient partenaire officiel de la Fédération Française de la Franchise
    CessionPME Franchise noue un partenariat stratégique avec la Fédération Française de la Franchise pour renforcer l’entrepreneuriat et l’expansion des réseaux de franchise CessionPME Franchise, la plateforme dédiée aux enseignes de la franchise et du commerce organisé indépendant, est ravie d’annoncer la signature d’un partenariat stratégique avec la Fédération Française de la Franchise. Cette collaboration marque une nouvelle étape dans notre engagement commun à soutenir les dynamiques de création, de reprise et de développement des enseignes partout en France.  Depuis plus de 25 ans, CessionPME.com, filiale du groupe Ouest-France et premier partenaire de la Bourse d’Affaires de BPI France, s’impose comme la plateforme leader dans la mise en relation entre cédants, repreneurs, investisseurs et réseaux d’enseignes. Chaque mois, près de 500 000 porteurs de projets explorent plus de 120 000 opportunités, générant plus de 20 000 mises en relation qualifiées. Avec ce partenariat, CessionPME Franchise renforce son rôle d’accélérateur de croissance pour les enseignes, en leur offrant des leviers concrets pour : Valoriser leur concept et leur marque auprès d’un public ciblé d’entrepreneurs en recherche active ; Diffuser efficacement leurs projets de reprise et d’implantation géolocalisés; Recruter des profils qualifiés, motivés et prêts à entreprendre en réseau. En conjuguant l’expertise de la FFF et la puissance de notre écosystème digital, nous créons un environnement favorable à la pérennisation et au développement des réseaux partout sur le territoire. Ce partenariat illustre notre volonté commune d’agir concrètement pour le dynamisme entrepreneurial en France, en facilitant les rencontres entre les enseignes ambitieuses et les entrepreneurs de demain.  Pour plus d’informations : 👉 www.cessionpme.com/franchise  
    Publié par : CESSIONPME.COM
    FRANCHISE EXPO PARIS 14-16 Mars 2026 : l'évènement incontournable de l'entreprenariat en franchise
    Se lancer dans l’entrepreneuriat est une ambition forte, mais créer un concept de zéro peut vite devenir un frein pour de nombreux porteurs de projet. C’est pourquoi la franchise s’impose aujourd’hui comme une voie privilégiée pour entreprendre en limitant les risques. S’appuyer sur un concept éprouvé, une marque reconnue et un accompagnement structuré permet de se lancer plus sereinement, notamment dans un contexte de reconversion professionnelle. Face à cette dynamique, Franchise Expo Paris s’impose comme l’événement de référence pour découvrir l’univers de la franchise et concrétiser son projet entrepreneurial. Véritable carrefour des opportunités, le salon réunit chaque année plus de 500 enseignes et 600 exposants, offrant un panorama complet des secteurs qui recrutent : commerce, services, alimentaire, bien-être ou encore services aux entreprises. L’un des grands atouts de la franchise réside dans l’accompagnement proposé aux franchisés : formation initiale, soutien opérationnel, outils marketing et logistique mutualisée. Autant de leviers essentiels pour sécuriser un projet et favoriser sa réussite sur le long terme. Ces avantages séduisent aussi bien les salariés en reconversion que les entrepreneurs souhaitant diversifier leurs activités ou reprendre une entreprise existante. Franchise Expo Paris permet également d’identifier les grandes tendances du marché : concepts hybrides, recherche de sens, consommation responsable, multi-franchise ou encore reprise d’enseignes matures. Au-delà des stands, le salon propose un programme riche de conférences et de rencontres avec des experts, des franchiseurs et des entrepreneurs qui partagent leurs retours d’expérience. Mais réussir en franchise, c’est aussi une question de rencontres et de valeurs. Le salon offre l’opportunité unique de créer un véritable “feeling” avec les têtes de réseau et de poser les bases d’un partenariat durable. Participer à Franchise Expo Paris, c’est faire le choix d’un point de départ solide pour entreprendre en franchise et construire un projet aligné avec ses ambitions professionnelles et personnelles.Retrouvez cessionPME Stand H10 à Franchise Expo Paris  
    Publié par : CESSIONPME.COM
    Ouvrir ou reprendre un magasin de téléphonie en franchise : un modèle rentable et structuré
    Un marché de la téléphonie en pleine recomposition Le secteur de la téléphonie mobile reste l’un des marchés les plus dynamiques du commerce de proximité en France. Porté par la généralisation des smartphones et par la montée du reconditionné, il attire de nombreux porteurs de projet. Les consommateurs recherchent des services rapides et fiables : réparation d’écran, changement de batterie, reprise d’appareils, ou encore vente d’accessoires. Dans ce contexte, la franchise en téléphonie s’impose comme une solution sécurisante pour entreprendre, grâce à un modèle éprouvé et un accompagnement structuré. En choisissant la reprise ou l’ouverture d’un magasin franchisé, l’entrepreneur bénéficie d’une notoriété de marque immédiate, d’un soutien logistique et de processus techniques standardisés. Cela réduit les risques liés au démarrage et facilite la rentabilité à moyen terme, dans un secteur où la concurrence est forte mais les marges peuvent être élevées sur la réparation et le reconditionné. Les enseignes et concepts présents sur le marché Le marché français de la téléphonie franchisée s’est considérablement structuré au cours des dernières années. Plusieurs enseignes ont su se démarquer grâce à des concepts hybrides mêlant vente, réparation et services. Chaque enseigne se distingue par sa stratégie : certaines misent sur la réparation technique et la formation, d’autres sur l’expérience client et le design du point de vente. Avant de s’engager, il convient d’analyser le modèle économique, les redevances et la zone de chalandise disponible. Les avantages du modèle franchisé Rejoindre un réseau de franchise dans la téléphonie présente plusieurs avantages majeurs : Accompagnement complet dès la création : aide à la recherche de local, formation initiale, mise en place du stock et du matériel de réparation. Fournisseurs référencés et conditions d’achat négociées, garantissant des marges optimisées. Formation technique continue sur les nouveaux modèles de smartphones et sur les procédures de diagnostic. Marketing mutualisé : visibilité nationale, campagnes publicitaires, site internet du réseau. Innovation permanente : outils de gestion, logiciels de suivi client, services additionnels (récupération de données, protection d’écran sur mesure, revente d’appareils). Ces atouts permettent à un franchisé de se concentrer sur la gestion quotidienne, la qualité du service et la satisfaction client, tout en s’appuyant sur la puissance d’un réseau reconnu. Les contraintes et les coûts à anticiper Si la franchise apporte un cadre sécurisant, elle implique également certaines contraintes. Le franchisé doit respecter le concept commercial, les normes de présentation et les politiques tarifaires définies par la tête de réseau. Il s’engage souvent pour une durée de 5 à 7 ans, avec des redevances d’exploitation ou de publicité pouvant représenter 3 à 6 % du chiffre d’affaires. L’investissement initial pour un magasin de téléphonie franchisé varie entre 60 000 et 120 000 € selon le format (boutique, corner, kiosque) et la localisation. Ce budget comprend les droits d’entrée, l’aménagement, le matériel technique et le stock de départ. Un apport personnel d’environ 25 à 35 % est généralement requis pour obtenir un financement bancaire. Reprise ou création : quelle stratégie adopter ? Deux options s’offrent aux candidats à la franchise : la création d’un nouveau point de vente ou la reprise d’un magasin franchisé existant. La reprise présente l’avantage de bénéficier immédiatement d’une clientèle fidèle, d’un personnel formé et d’une rentabilité déjà établie. Elle permet aussi de mieux évaluer les performances du concept dans une zone donnée. En revanche, la création offre plus de liberté dans le choix de l’emplacement et dans la négociation du bail. Les franchises accompagnent étroitement leurs nouveaux partenaires dans l’étude de marché et la validation du site d’implantation. Le choix dépendra du profil du repreneur, de son budget et de son objectif à moyen terme. Les candidats avec une expérience en gestion commerciale ou en téléphonie apprécieront la stabilité du modèle de reprise, tandis que les entrepreneurs ambitieux peuvent privilégier une création pour bâtir un réseau multi-sites à terme. Perspectives de croissance : reconditionné, éco-réparation et RSE Le marché de la téléphonie évolue vers plus de durabilité. Les enseignes de franchise intègrent désormais des volets environnementaux dans leur développement. L’éco-réparation, soutenue par des dispositifs publics, incite les clients à réparer plutôt qu’à remplacer. Le reconditionné s’impose comme un pilier du marché, avec une demande en forte progression chez les particuliers comme chez les professionnels. De plus, les acteurs de la franchise investissent dans la formation technique et la traçabilité des pièces détachées afin de garantir qualité et confiance. Ces démarches s’inscrivent dans une logique de responsabilité sociétale (RSE) de plus en plus valorisée par les consommateurs et les partenaires institutionnels. Les villes françaises attractives pour un commerce de téléphonie Les grandes agglomérations comme Paris, Lyon, Marseille, Lille, Bordeaux ou Toulouse concentrent la majorité des ouvertures, notamment dans les centres commerciaux à fort trafic. Les villes moyennes telles que Annecy, Tours, Brest ou Pau présentent également un potentiel intéressant pour les formats plus compacts (kiosques ou corners). La proximité d’universités, de zones d’affaires ou de centres commerciaux reste un critère clé. Les consommateurs recherchent la rapidité et la proximité, ce qui favorise les enseignes implantées sur des emplacements stratégiques à fort passage. Quel est l’investissement moyen pour une franchise de téléphonie ? Il faut compter entre 60 000 et 120 000 € selon le format et l’enseigne, incluant les droits d’entrée, le matériel et l’aménagement du local. La franchise est-elle plus rentable qu’un commerce indépendant ? La franchise offre une meilleure visibilité et une rentabilité plus rapide, mais les marges nettes peuvent être légèrement inférieures en raison des redevances. La stabilité du modèle compense souvent cet écart. Peut-on reprendre un magasin franchisé existant ? Oui, de nombreux réseaux facilitent la reprise de points de vente. Cela permet d’obtenir immédiatement un fonds de commerce opérationnel et une clientèle déjà constituée. Faut-il une expérience technique pour se lancer ? Pas nécessairement. Les enseignes de téléphonie proposent des formations initiales et continues. Un profil commercial et rigoureux suffit pour gérer efficacement le point de vente. Quels sont les secteurs d’avenir dans la téléphonie ? Le reconditionné, la réparation éco-responsable et la vente d’accessoires connectés sont les segments les plus porteurs. Les enseignes qui misent sur la durabilité et le service client affichent les meilleures perspectives de croissance.
    Publié par : CESSIONPME.COM