A louer locaux divisibles 3740m² Plateau de Signes
Loyer mensuel
29 920€
Surface
3 740 m²
Montant au m²
96€/m²/an
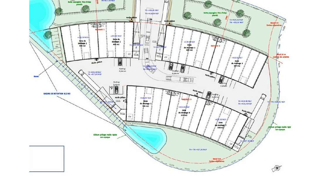
A louer, au sein du Parc d'Activités du Plateau de Signes, sur un terrain d’environ 13.614 m², un ensemble d'activité de 3.740 m² divisé en plusieurs bâtiments et plusieurs cellules.
Bâtiment 1 (gauche) :
Surface 900m²
hauteur intérieure 8 m sous jarret
cloison possible en 2 fois 450m²
Bâtiment 2 (droite) :
Surface 1 316m²
hauteur intérieure 8 m sous jarret
cloison possible en 659m² et 657m²
bâtiment 3 (à l’arrière)
Surface 1 524m²
hauteur intérieure 8 m sous jarret
cloison possible en 545m², 433m², 546m²
Chaque lot est relié aux réseaux : électricité, téléphonie, eau, eau usée.
Isolation des mûrs, de la couverture, places de stationnement, porte sectionnelles, portillons de secours...
Bâtiment 1 (gauche) :
Surface 900m²
hauteur intérieure 8 m sous jarret
cloison possible en 2 fois 450m²
Bâtiment 2 (droite) :
Surface 1 316m²
hauteur intérieure 8 m sous jarret
cloison possible en 659m² et 657m²
bâtiment 3 (à l’arrière)
Surface 1 524m²
hauteur intérieure 8 m sous jarret
cloison possible en 545m², 433m², 546m²
Chaque lot est relié aux réseaux : électricité, téléphonie, eau, eau usée.
Isolation des mûrs, de la couverture, places de stationnement, porte sectionnelles, portillons de secours...
Les informations sur les risques auxquels ce bien est exposé sont disponibles sur le site Géorisques :
Données Financières
Loyer mensuel : 29 920 € (96.00 €/m²/an)
Surfaces et longueurs
Surface de 3 740 m²
Informations sur le bail
Bail Commercial - 3/6/9 ans
Bilan énergétique
Diagnostic de performance énergétique (DPE)
N.C.
Catégorie N.C.
Le classement énergétique n'a pas été communiqué par l'annonceur.
Emplacement
Synthèse
A louer Immobilier d'entreprise Locaux commerciaux - Boutiques
Signes, Var (83), Provence-Alpes-Côte d'Azur
Loyer mensuel : 29 920 € (96.00 €/m²/an)
Surface de 3 740 m²
Réactualisé le 19/02/2026
Référence CessionPME : AC19022026
Demander plus d'informations sur ce bien
Loyer médian en immobilier professionnel dans le Var 83, rubrique Locaux commerciaux - Boutiques
14 €/m²/mois
Loyer bas
18 €/m²/mois
Loyer médian
25 €/m²/mois
Loyer haut



