Locaux d'activités de 3.740m² divisibles à Signes
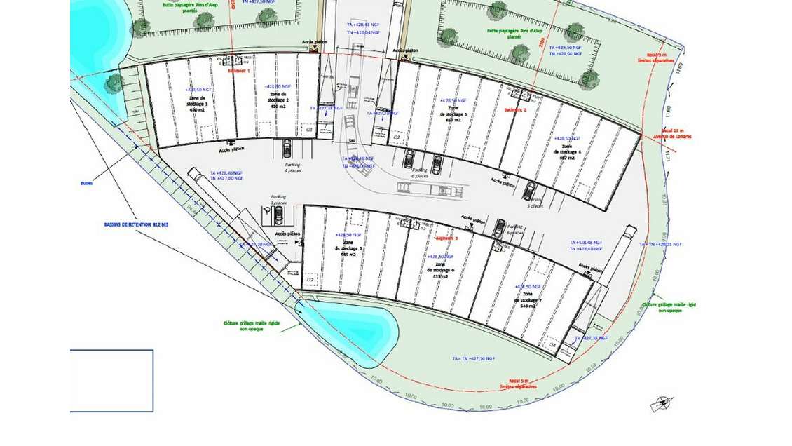
Bâtiment 1 (gauche) :
Surface 900m²
hauteur intérieure 8 m sous jarret
cloison possible en 2 fois 450m²
Bâtiment 2 (droite) :
Surface 1 316m²
hauteur intérieure 8 m sous jarret
cloison possible en 659m² et 657m²
bâtiment 3 (à l'arrière)
Surface 1 524m²
hauteur intérieure 8 m sous jarret
cloison possible en 545m², 433m², 546m²
Chaque lot est relié aux réseaux : électricité, téléphonie, eau, eau usée.
Isolation des mûrs, de la couverture, places de stationnement, porte sectionnelles, portillons de secours...
Les informations sur les risques auxquels ce bien est exposé sont disponibles sur le site Géorisques :
Données Financières
Prix de vente : 6732000 € (1 800 €/m²)
Précision sur le prix de vente : Divisible à partir de 433 m²
Honoraires : information non communiquée par l'agence
Surfaces et longueurs
Surface : Divisible à partir de 433 m²
Surface de 3 740 m²
Bilan énergétique
Le classement énergétique n'a pas été communiqué par l'annonceur.
Emplacement
Synthèse
A vendre Immobilier d'entreprise Locaux commerciaux - Boutiques
Signes, Var (83), Provence-Alpes-Côte d'Azur
Prix de vente : 6732000 € (1 800 €/m²)
Surface de 3 740 m²
Réactualisé le 19/02/2026
Référence CessionPME : AC19022026
Demander plus d'informations sur ce bien


