A vendre bureaux locaux commerciaux 118m² Orvault
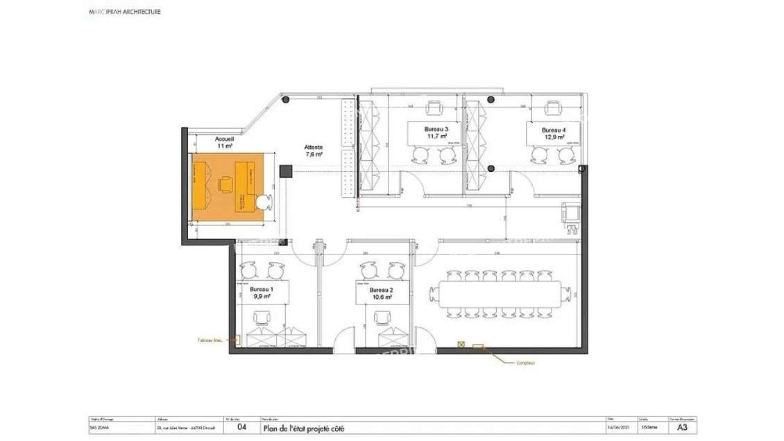
- un accueil
- cinq bureaux fermés
- une salle de réunion 3 parkings aériens. Les informations sur les risques naturels, miniers, ou technologiques, auxquels ces biens sont exposés, sont disponibles sur le site
Les informations sur les risques auxquels ce bien est exposé sont disponibles sur le site Géorisques :
Données Financières
Prix de vente : 267500 € (2 266,95 €/m²)
Précision sur le prix de vente : Régime fiscal vente : Prix hors TVA résiduelle - droits enregistrement en sus
Honoraires à charge de l'acquéreur
Surfaces et longueurs
Surface de 118 m²
Bilan énergétique
Le classement énergétique n'a pas été communiqué par l'annonceur.
Emplacement
Synthèse
A vendre Immobilier d'entreprise Bureaux
Orvault, Loire-Atlantique (44), Pays de la Loire
Prix de vente : 267500 € (2 266,95 €/m²)
Surface de 118 m²
Réactualisé le 27/03/2026
Référence CessionPME : 0140-23-27959
Demander plus d'informations sur ce bien



