Vente cellule artisanale 527m² à La Rochelle CDA
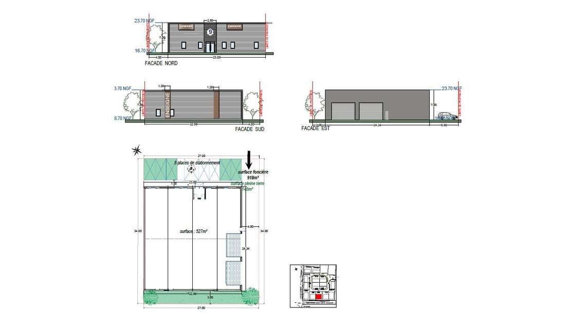
- CDA au sein d'un village artisanal, à vendre cellule artisanale / industrielle de 527 m² sur un terrain de 918 m², livré brut de béton, fluides en attente. Construction et livraison courant 1er trimestre 2023, bénéficiant d'une garantie décennale et dommages ouvrages. Bâtiment neuf en charpente métallique, bardage double peau, toiture bac acier à pente douce sur deux pans. La structure bénéficie d'une belle hauteur sous faitage de 7 m et sera accessible par deux portes sectionnelles électriques de 5,5 H x 4,5 M. Compteur bleu triphasé max 36 KVA. 8 stationnements privatifs. Le plus : très belle visibilité sur axe circulant et cellule mitoyenne à une autre de même dimension pouvant être réunies et atteindre plus de 1000 m² d'exploitation !!! Prix de vente hors honoraires de 798 000 € HT. Prix de vente honoraires inclus de 1 436 400 € TTC dont 5 % TTC d'honoraires à charge de l'acquéreur
Les informations sur les risques auxquels ce bien est exposé sont disponibles sur le site Géorisques :
Données Financières
Prix de vente : 837900 € (1589.94 €/m²)
Honoraires : 39 900 €
Prix de vente Hors Honoraires : 798 000 €
Honoraires à charge de l'acquéreur 5.00 %
Surfaces et longueurs
Surface de 527 m²
Equipements
Parking 8 places
Bilan énergétique
Le classement énergétique n'a pas été communiqué par l'annonceur.
Emplacement
Synthèse
A vendre Immobilier d'entreprise Locaux d'activités - Entrepôts
La Rochelle, Charente-Maritime (17), Poitou-Charentes
Prix de vente : 837900 € (1589.94 €/m²)
Surface de 527 m²
Réactualisé le 18/03/2026
Référence CessionPME : 310_2716
Demander plus d'informations sur ce bien



