Bureaux 61m² à louer Paris 11e rue Auguste Barbier
Loyer mensuel
2 100€
Surface
61 m²
Montant au m²
413€/m²/an
Exclusivité
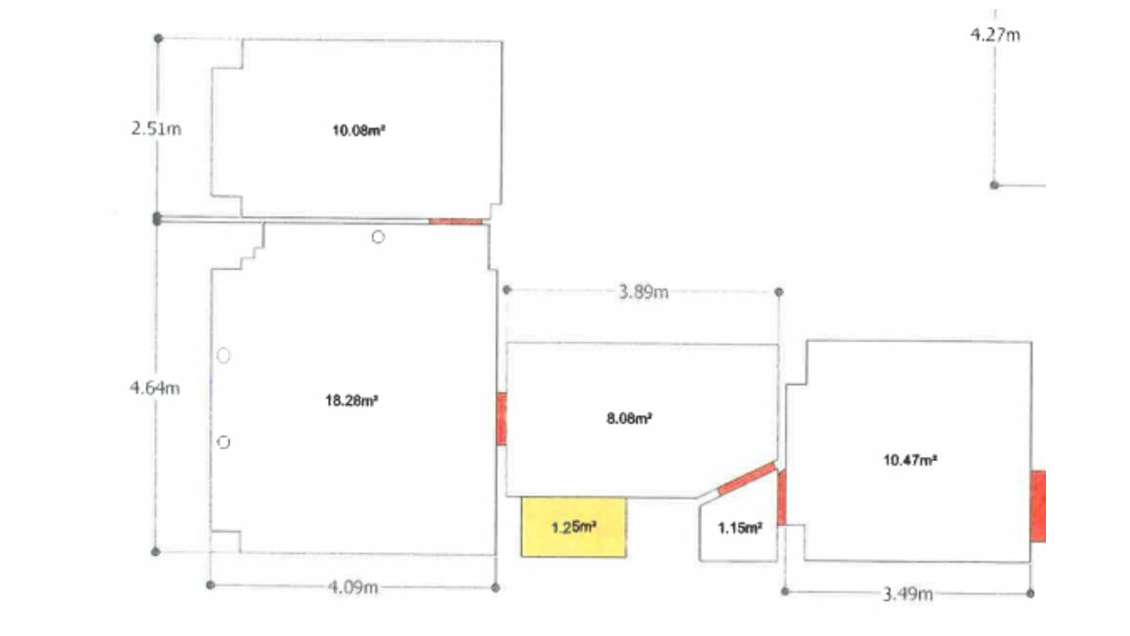
- A PARIS 11ème (75011), Bureaux donnant sur la rue Auguste Barbier d'une surface de plain-pied de 48 m2 et 13m2 de sous/sol accessible par un escalier. A proximité du métro Goncourt .
Bail dérogatoire ou 3/6/9 ou professionnel.
Loyer Mensuel HT/HC : 2.100 €
- Charges Mensuelles HT/HC : 129 € + taxe foncière + frais de bail à prévoir
- A PARIS 11ème (75011), Bureaux donnant sur la rue Auguste Barbier d'une surface de plain-pied de 48 m2 et 13m2 de sous/sol accessible par un escalier. A proximité du métro Goncourt .
Bail dérogatoire ou 3/6/9 ou professionnel.
Loyer Mensuel HT/HC : 2.100 €
- Charges Mensuelles HT/HC : 129 € + taxe foncière + frais de bail à prévoir
Les informations sur les risques auxquels ce bien est exposé sont disponibles sur le site Géorisques :
Conditions
Disponibilité: Immédiate
Données Financières
Loyer mensuel : 2 100 € (413.16 €/m²/an)
Honoraires : 9 000 €
Surfaces et longueurs
Surface de 61 m²
Bilan énergétique
Diagnostic de performance énergétique (DPE)
N.C.
Catégorie N.C.
Le classement énergétique n'a pas été communiqué par l'annonceur.
Synthèse
A louer Immobilier d'entreprise Bureaux
Paris 11e, Paris (75), Île-de-France
Loyer mensuel : 2 100 € (413.16 €/m²/an)
Surface de 61 m²
Réactualisé le 17/03/2026
Référence CessionPME : 942L840759
Demander plus d'informations sur ce bien
Loyer médian en immobilier professionnel à Paris 75, rubrique Bureaux
32.73 €/m²/mois
Loyer bas
41.85 €/m²/mois
Loyer médian
58.32 €/m²/mois
Loyer haut



