Location local pro 129m² R+1 Toulouse Languedoc
Loyer mensuel
2 100€
Surface
124 m²
Montant au m²
203€/m²/an
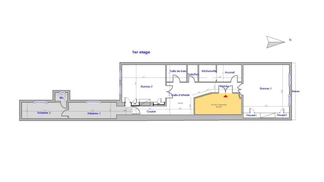
A louer professionnel de 129 m², situés au 1er étage sans ascenseur d'un immeuble situé rue du Languedoc à Toulouse.
Le local dispose d'une entrée, d'une salle d'attente, de 2 bureaux, d'une kitchenette, d'une salle de bain et d'une réserve. Idéal pour toute profession libérale souhaitant un emplacement central dans Toulouse et une proximité avec les transports en commun. Disponible au 31 Mai 2026 Loyer : 2 100 Euro HC Charges : 110 Euro Taxe foncière : 3 000Euro / an Dépôt de garantie : 2 100Euro Honoraires de location (rédaction du bail et état des lieux inclus) : 8 020 Euro TTC (6 683,33 Euro HT)
Le local dispose d'une entrée, d'une salle d'attente, de 2 bureaux, d'une kitchenette, d'une salle de bain et d'une réserve. Idéal pour toute profession libérale souhaitant un emplacement central dans Toulouse et une proximité avec les transports en commun. Disponible au 31 Mai 2026 Loyer : 2 100 Euro HC Charges : 110 Euro Taxe foncière : 3 000Euro / an Dépôt de garantie : 2 100Euro Honoraires de location (rédaction du bail et état des lieux inclus) : 8 020 Euro TTC (6 683,33 Euro HT)
Données Financières
Loyer mensuel : 2 100 € (203.28 €/m²/an)
Honoraires : 8 020 €
Surfaces et longueurs
Surface de 124 m²
Bilan énergétique
Diagnostic de performance énergétique (DPE)
N.C.
Catégorie N.C.
Le classement énergétique n'a pas été communiqué par l'annonceur.
Emplacement
Synthèse
A louer Immobilier d'entreprise Bureaux
Toulouse, Haute-Garonne (31), Midi-Pyrénées
Loyer mensuel : 2 100 € (203.28 €/m²/an)
Surface de 124 m²
Réactualisé le 18/03/2026
Référence CessionPME : 10132_59998661
Demander plus d'informations sur ce bien
Loyer médian en immobilier professionnel dans la Haute-Garonne 31, rubrique Bureaux
9.74 €/m²/mois
Loyer bas
11.43 €/m²/mois
Loyer médian
16.04 €/m²/mois
Loyer haut



